
Первые идеи
Впервые идея создания археологического музея в Красноярске прозвучала в далеком 2008 году. Тем летом на Афонтовой горе проходили очередные раскопки, позволившие отыскать очередную кость мамонта и следы поселения древних людей.
Музей хотели сделать таким, где посетители своими глазами видели бы раскопки и всю дальнейшую обработку находок. «Мысль о консервации раскопок переросла в идею мини-музея, который популяризировал бы это место и позволил работать с туристами», — рассказывал автор предложения Николай Истомин.
«Подготовка к организации музея начата, — говорил тогда ректор КГПУ Николай Дроздов. — Мы рассчитываем, что все, кто будет заходить сюда, смогут увидеть жизнь такой, какая она была оставлена древним человеком 17–20 тысяч лет назад». Этот музей будет уникальным, уверял Дроздов, поскольку, по его словам, археологических музеев «в таких местах и такой древности нет нигде».
Перемена места
Но довести до реализации идею создания археологического музея не удалось и о ней забыли на долгие 15 лет. «Всплыла» она только в ноябре 2023 года во время мероприятия в СФУ, в котором участвовал экс-губернатор Красноярского края Александр Усс, главный архитектор края Константин Шумов, а также архитекторы, археологи и историки.
Ученые напомнили, что во время реконструкции здания филармонии рядом с ней были сделаны археологические находки. Там были обнаружены старинные гробы (что логично для старого кладбища).
«БКЗ строили, и я лично видел фотографии со вбитыми в четыре ряда гробов сваями», — рассказывал ранее Константин Шумов.

Но самое главное, под площадью «нашлись» фрагменты острожных строений: стены, башни, ров и внутренние постройки, а также артефакты 17-18 веков. Крупные находки предложили не извлекать на поверхность, а дать возможность людям увидеть их прямо на том месте, где они находились.
В итоге именно на площади Мира остановились разработчики, предложившие создать современный музей. В 2023 году были представлены только карандашные рисунки того, как могла бы выглядеть площадь. В проекте было предложено показать контуры стен и башен деревянной крепости Красноярска XVII века, установить памятный знак на месте алтаря утраченного Воскресенского собора и обновить триумфальную арку. Но главным объектом предложили сделать подземный археологический музей.
Второй раз предложение прозвучало в 2024 году, после того, как на территории реставрируемой усадьбы на улице Карла Маркса были найдены внешние границы красноярского острога.
От обсуждения к проекту
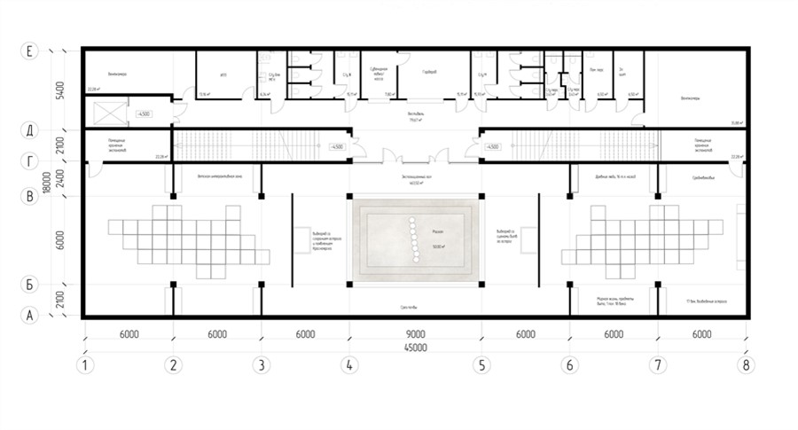
И вот, свершилось. Накануне красноярский «Гражданпроект» показал, как может выглядеть подземный музей, включенный в перечень объектов, которые должны появится к 400-летию Красноярска. Предварительная стоимость реализации проекта — 160 млн рублей.
Проектировщики предлагают создать музей с небольшой площадью — всего 810 кв. метров. Музей предлагают сделать научным центром, а также использовать его как площадку для знакомства с историей города и место патриотического воспитания школьников.
В проекте продумали всё: от планировки до инженерных решений. Особое внимание уделили тому, чтобы музей хорошо вписался в город, был доступным и безопасным для посетителей, а также удобным для хранения и показа археологических находок.
История Красноярска с момента появления здесь первых людей и до наших дней безусловно заслуживает собственного музея с постоянной экспозицией. Особенно, учитывая, что его проект предполагает создание современного здания, сочетающего традиции и новые технологии.

